Residential house plan in DWG file
Description
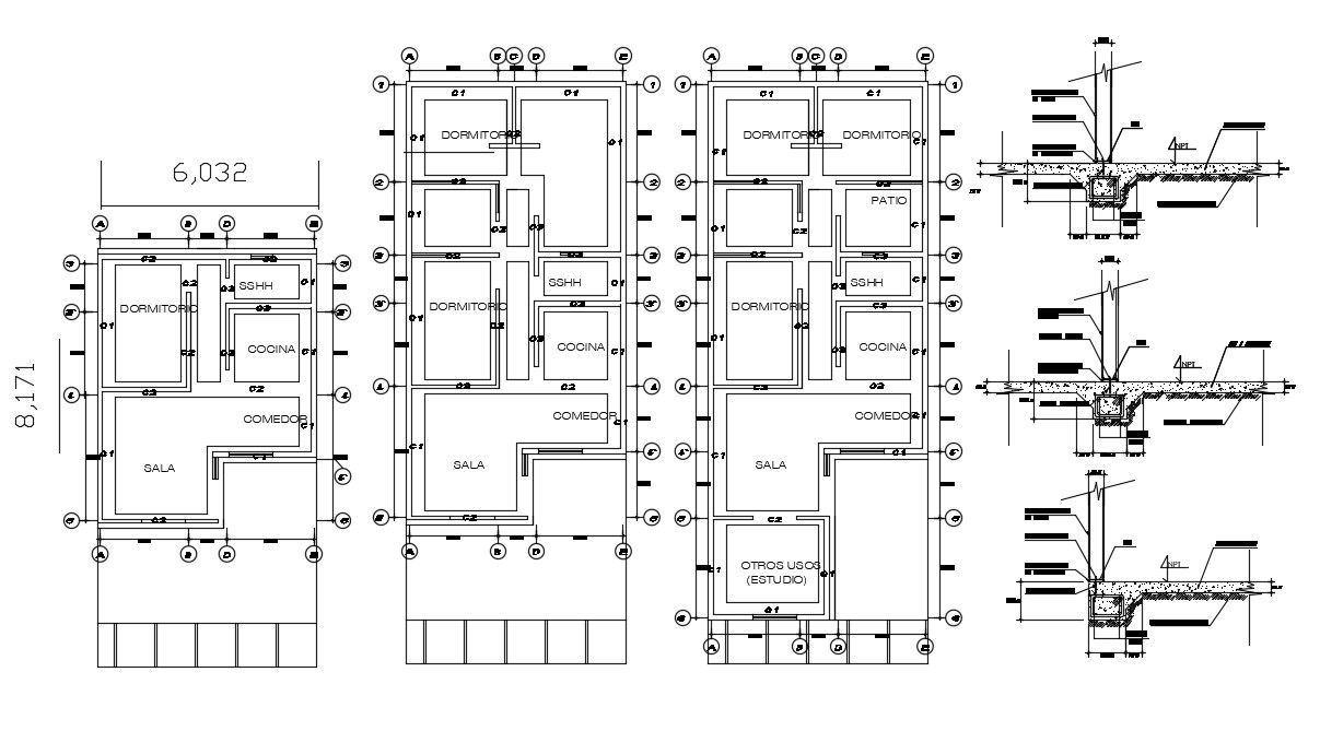
Residential house plan in DWG file which includes details of the hall, bedroom, dining room, kitchen, bathroom, toilet, etc and also provides the details of foundation details.

Uploaded by:
Eiz
Luna

Uploaded by:
Luna