LOGIN
HOME
CATEGORIES
UPLOAD FILE
PRICING
HOUSE PLAN
ABOUT US
CONTACT US
House plans in DWG file
Home
Categories
Architecture
House Plan
House plans in DWG file
Uploaded by:
Eiz
Luna
View Profile
View Profile
Description
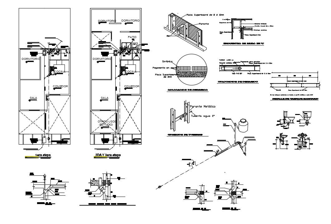
House plans in DWG file which includes details of the hall, kitchen, bedroom, dining room, washroom, etc and also provides details of washbasin and water closet.
File Type:
DWG
File Size:
2.5 MB
Category::
Architecture
Sub Category::
House Plan
type:
Gold
Uploaded by:
Eiz
Luna
View Profile
Download
Add to libary
find Latest
Related
Files