Hospital design plan in AutoCAD file
Description
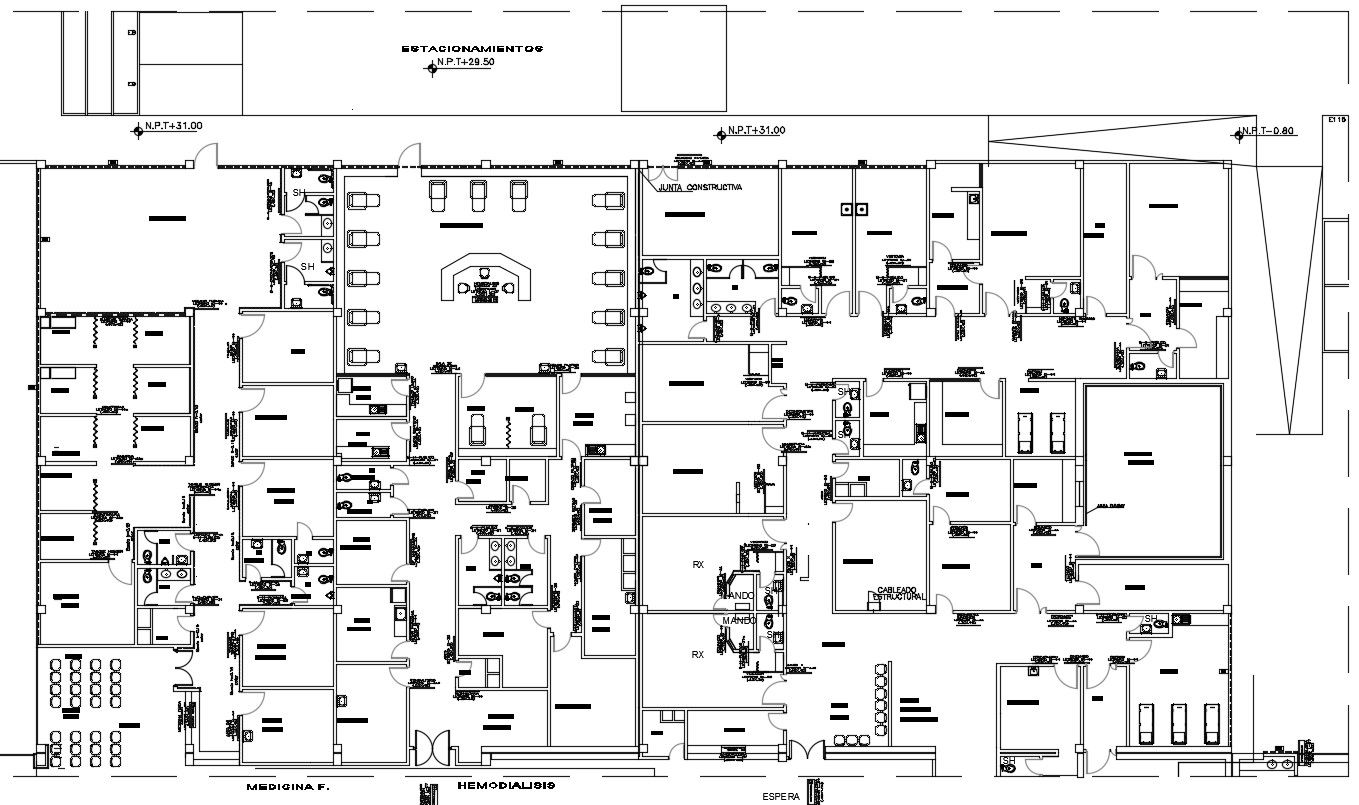
Hospital design plan in AutoCAD file which includes detail dimension of therapist room, electrical room, general ward, laboratory, toilets, bathroom, waiting area, etc.

Uploaded by:
Eiz
Luna

Uploaded by:
Luna