Home plans for 30x40 site with detail dimension in DWG file
Description
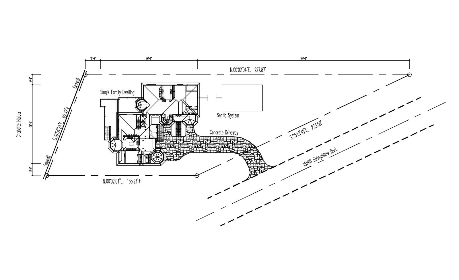
Home plans for 30x40 site with detail dimension in DWG file which includes detail dimension of the hall, bedroom, kitchen, dining area, bathroom, toilet, etc it also gives detail of the septic system, sea wall,

Uploaded by:
Eiz
Luna

