Guest house design with detail dimension in DWG file
Description
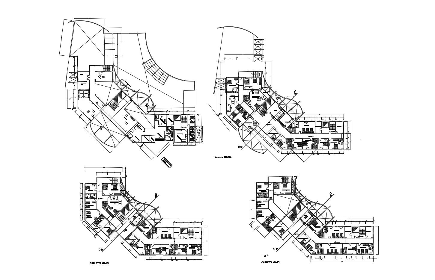
Guest house design with detail dimension in DWG file which provides detail dimension of waiting hall, bedrooms, passage, balcony, bathroom, toilet, etc it also gives full detail of furniture.

Uploaded by:
Eiz
Luna

