House plan in dwg file
Description
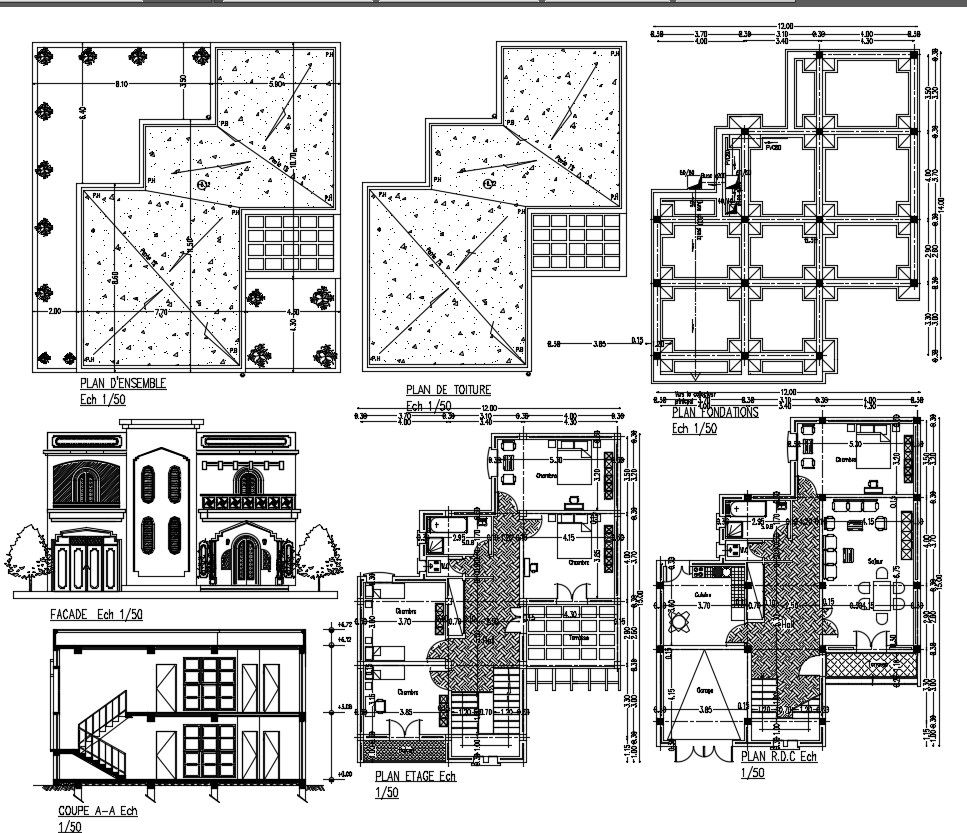
House plan in dwg file which includes the details of front elevation, hall, bedroom, kitchen, bathroom, toilet, etc it also includes the details of the staircase, window, door, garden area.

Uploaded by:
Eiz
Luna

Uploaded by:
Luna