Building design in autocad
Description
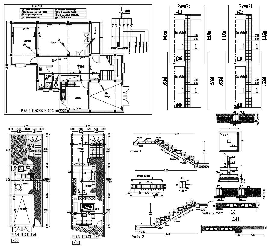
Building design in autocad which includes the details of the hall, waiting area, kitchen, washroom, etc it also includes the details of the staircase, foundation, and floor level.

Uploaded by:
Eiz
Luna

Uploaded by:
Luna