2d cad drawing of College campus in autocad
Description
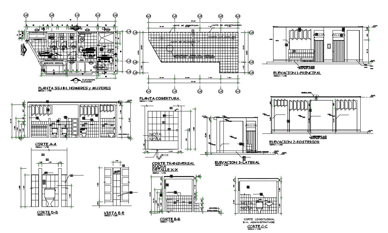
2d cad drawing of College campus in autocad which includes the details of elevation, section details, coverage details, details of building view, washroom details, etc.

Uploaded by:
Eiz
Luna

Uploaded by:
Luna