College elevation in autocad
Description
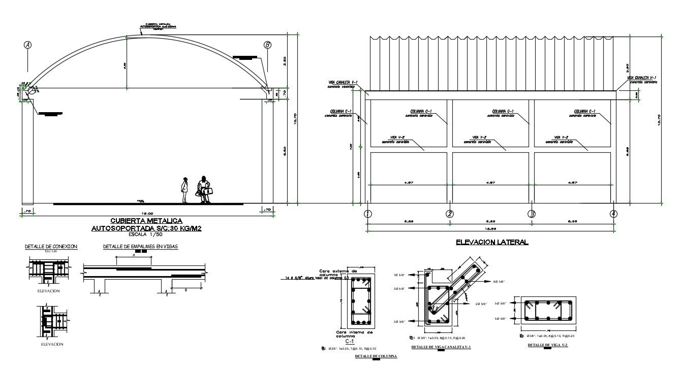
College elevation in autocad which shows the metal cover details, elevation details, back elevation, foundation details, roof details, etc, it also includes the details of floor level.

Uploaded by:
Eiz
Luna

Uploaded by:
Luna