Hotel foundation structure
Description
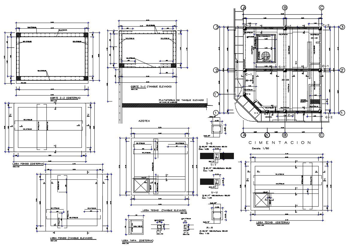
Hotel foundation structure in AutoCAD which shows the roof slab, foundation details, section details with dimension, slab, etc, it also provides the details of floor level.

Uploaded by:
Eiz
Luna

Uploaded by:
Luna