LOGIN
HOME
CATEGORIES
UPLOAD FILE
PRICING
HOUSE PLAN
ABOUT US
CONTACT US
bathroom drawing
Home
Categories
Dwg Cad Blocks
Sanitary Ware Cad Block
bathroom drawing
Uploaded by:
Eiz
Luna
View Profile
View Profile
Description
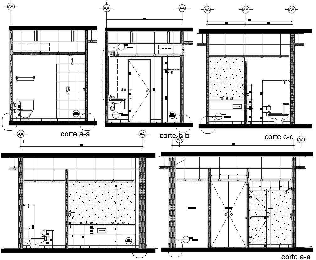
bathroom drawing in DWG file which provides the section with detail dimension, washbasin, water closet, door details, mirror details, etc, it also shows the furniture details.
File Type:
DWG
File Size:
1.3 MB
Category::
Dwg Cad Blocks
Sub Category::
Sanitary Ware Cad Block
type:
Gold
Uploaded by:
Eiz
Luna
View Profile
Download
Add to libary
find Latest
Related
Files