LOGIN
HOME
CATEGORIES
UPLOAD FILE
PRICING
HOUSE PLAN
ABOUT US
CONTACT US
staircase design
Home
Categories
Details
Structural Steel Drawings
staircase design
Uploaded by:
Eiz
Luna
View Profile
View Profile
Description
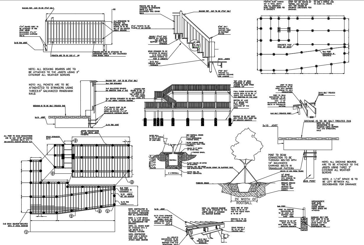
staircase design in AutoCAD which shows the details of staircase design along with riser details like height and width, lawn area, concrete details, etc.
File Type:
3d max
File Size:
2.6 MB
Category::
Details
Sub Category::
Structural Steel Drawings
type:
Gold
Uploaded by:
Eiz
Luna
View Profile
Download
Add to libary
find Latest
Related
Files