Hotel building plan with detail dimension in dwg file
Description
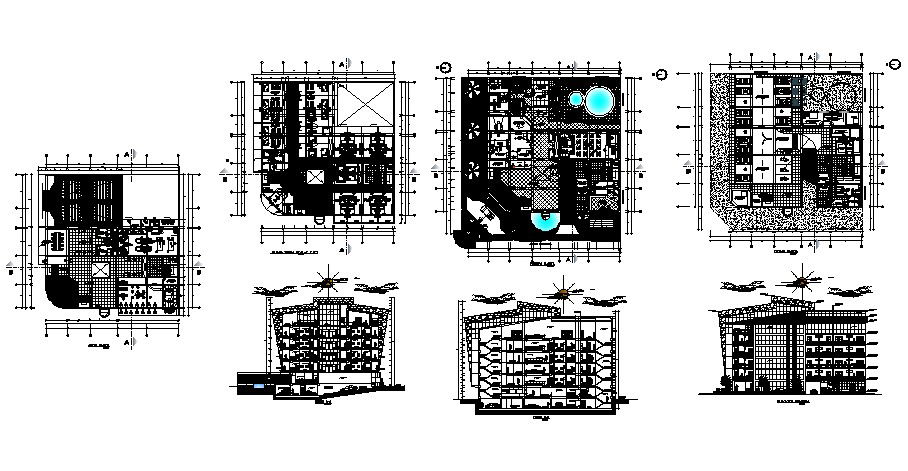
Hotel building plan with detail dimension in dwg file which includes detail of front elevation, side elevation, detail dimension of the hall, restaurant area, kitchen area, rooms, WC and bath, etc it also gives detail of furniture.

Uploaded by:
Eiz
Luna

