3 storey house with elevation and section in DWG file
Description
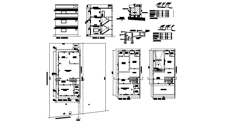
3 storey house with elevation and section in DWG file which provides detail of front elevation, detail dimension of the drawing-room, bedroom, kitchen with dining room, bathroom, toilet, etc.

Uploaded by:
Eiz
Luna

