Elevation of a house with detail dimension in DWG file
Description
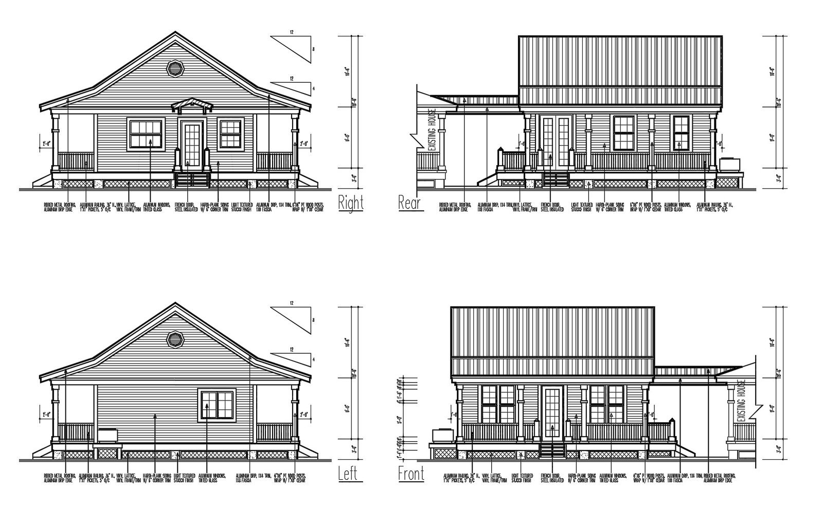
Elevation of a house with detail dimension in DWG file which provides detail of front elevation, back elevation, left elevation, right elevation, detail of floor level, detail of entrance, etc.

Uploaded by:
Eiz
Luna

