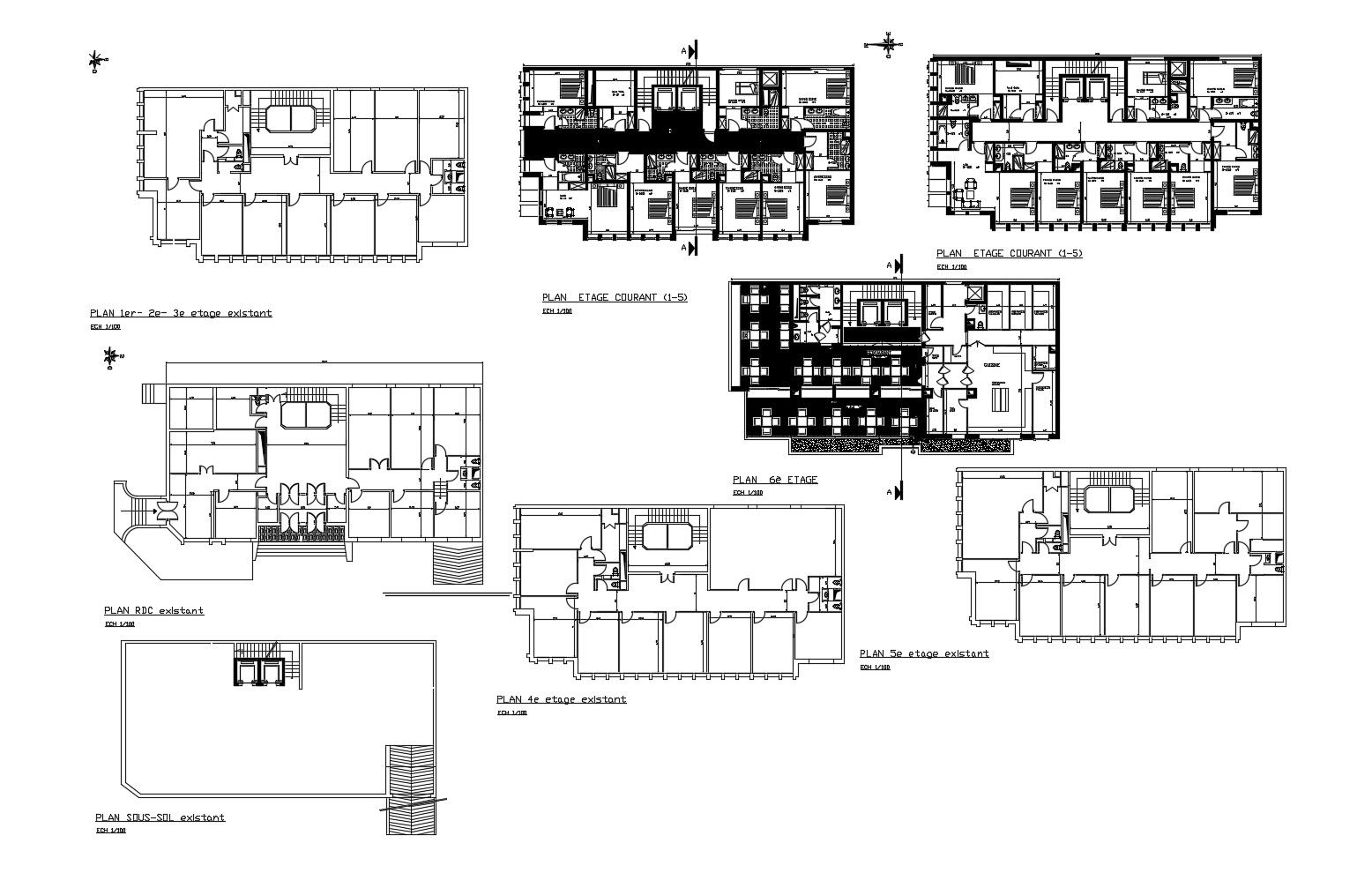
Hotel floor plan with detail dimension in DWG file
Description
Hotel floor plan with detail dimension in DWG file which provides detail dimensions of the restaurant area, hall, passage, bar area, rooms, washroom, toilet, etc it also gives full detail of furniture.

Uploaded by:
Eiz
Luna

