Guesthouse design in DWG file
Description
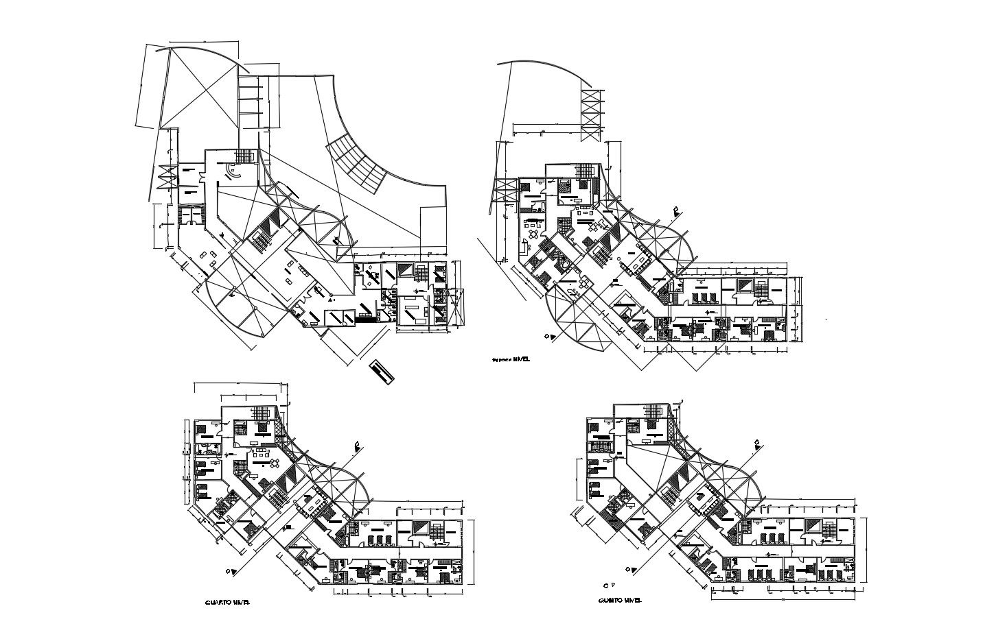
Guesthouse design in DWG file which provides detail dimensions of waiting hall, bedrooms, passage, balcony, bathroom, toilet, etc it also gives full detail of furniture.

Uploaded by:
Eiz
Luna

Uploaded by:
Luna