Download Free Hotel layout plan in AutoCAD
Description
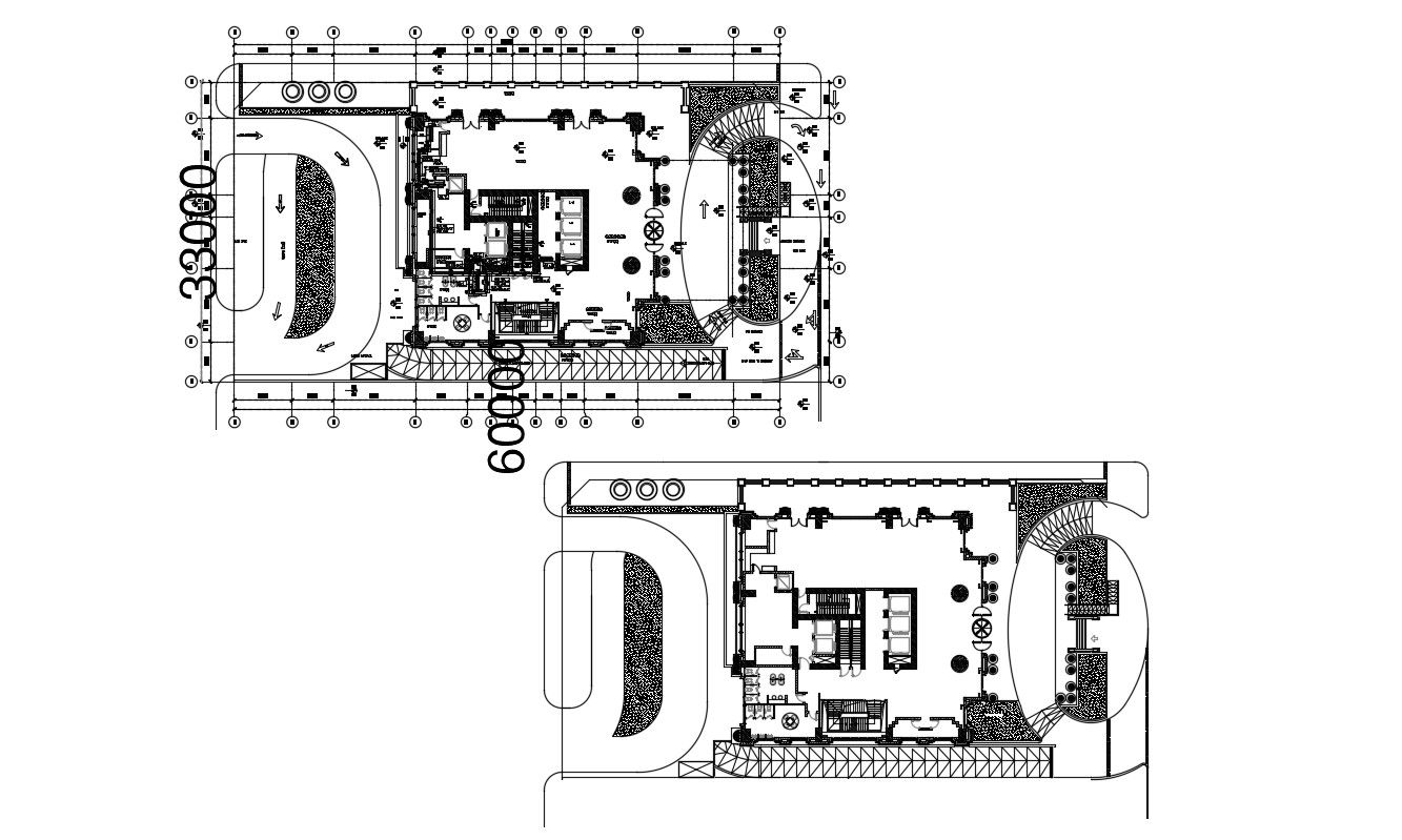
Download Free Hotel layout plan in AutoCAD which includes detail dimension of main hotel entrance, green area, slope, sidewalk, handicapped ramp, basement ramp, administration, reception, waiting area, toilets, washroom, sitting area, cafeteria, lift lobby, service lift, lifts, storage, car entrance.

Uploaded by:
Eiz
Luna
