LOGIN
HOME
CATEGORIES
UPLOAD FILE
PRICING
HOUSE PLAN
ABOUT US
CONTACT US
Collector design in AutoCAD file
Home
Categories
Details
Architectural Detail Drawings
Collector design in AutoCAD file
Uploaded by:
Eiz
Luna
View Profile
View Profile
Description
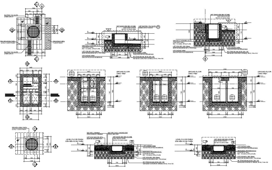
Collector design in AutoCAD file which provides section detail of fat collector, detail dimension of the manhole with section detail, etc
File Type:
DWG
File Size:
2.5 MB
Category::
Details
Sub Category::
Architectural Detail Drawings
type:
Gold
Uploaded by:
Eiz
Luna
View Profile
Download
Add to libary
find Latest
Related
Files