Drawings details 2d view of sports building floor layout plan dwg file
Description
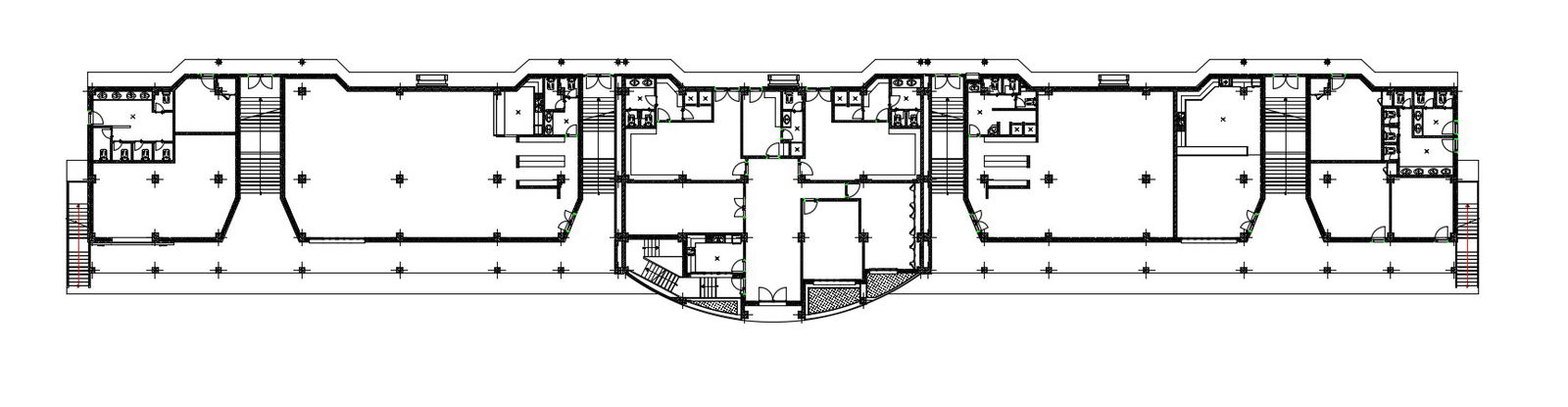
Drawings details 2d view of sports building floor layout plan dwg file that shows work floor layout plan of building along with floor level details and staircase details dimension details wall flooring details door window blocks details also included in drawings.

Uploaded by:
Eiz
Luna

