2d CAD sectional drawing of housing apartment dwg file
Description
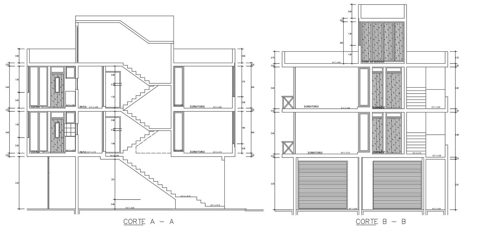
2d CAD sectional drawing of housing apartment dwg file that shows sectional details of building apartment along with staircase details and floor level details.

Uploaded by:
Eiz
Luna

Uploaded by:
Luna