CAD drawings of staircase construction and column details dwg file
Description
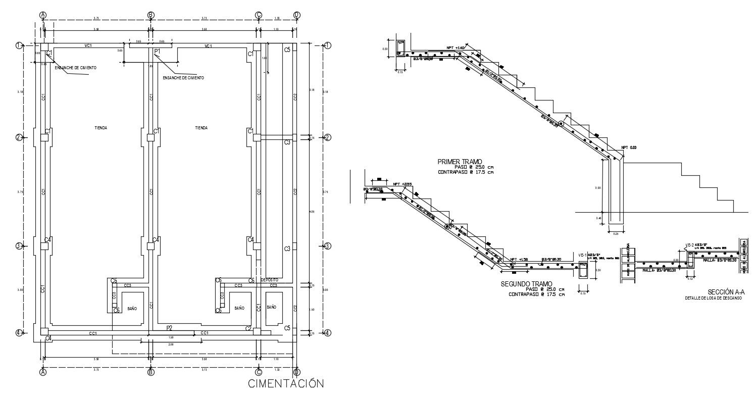
CAD drawings of staircase construction and column details dwg file that shows construction details of stairway along with riser tread details and riser height tread width details. Reinforcement are provided in tension and compression zone along with main and distribution hook up and bent up bars details and column installation plan is also shown in drawings.

Uploaded by:
Eiz
Luna

