Drawings details of column installation layout dwg file
Description
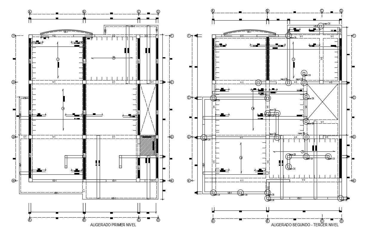
Drawings details of column installation layout dwg file that shows column and beam structure plan details along with long short column design details with column spacing details and dimension details also included in drawings.

Uploaded by:
Eiz
Luna

