CAD 2d layout plan drawings of housing building floor plan dwg file
Description
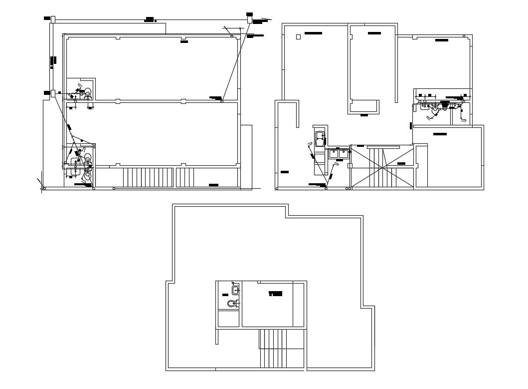
CAD 2d layout plan drawings of housing building floor plan dwg file that shows work plan drawings details of building units along with floor level and staircase details sanitary toilet details also included in drawings.
File Type:
DWG
File Size:
229 KB
Category::
Interior Design
Sub Category::
House Interiors Projects
type:
Gold

Uploaded by:
Eiz
Luna
