residence layout plan with ceiling design cad file
Description
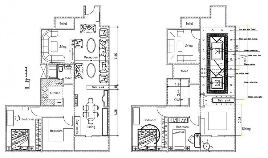
2d cad drawing of architecture residential layout plan includes 2 bedrooms, kitchen drawing room, living room, dining area, coffee bar, along with all furniture presentation detail, and beautiful modern ceiling with lighting detail, download free autocad file and use for cad presentation.
Uploaded by:
Eiz
Luna

