Electrical Room Layout & Section cad file
Description
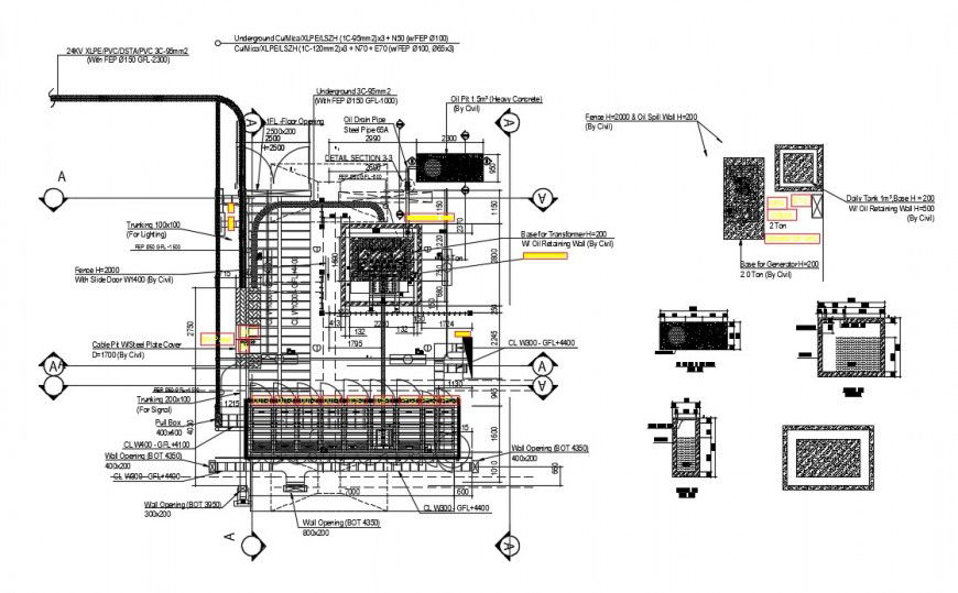
Electrical Room layout plan showing that factor into new building design main equipment rooms, distribution pathways, and local/branch equipment rooms,code-required the load is assumed to be passive and are represented by a resistive and inductive reactance in the series, Neutral earthing impedance does not appear in the diagram as the balanced condition is assumed.
Uploaded by:
Eiz
Luna

