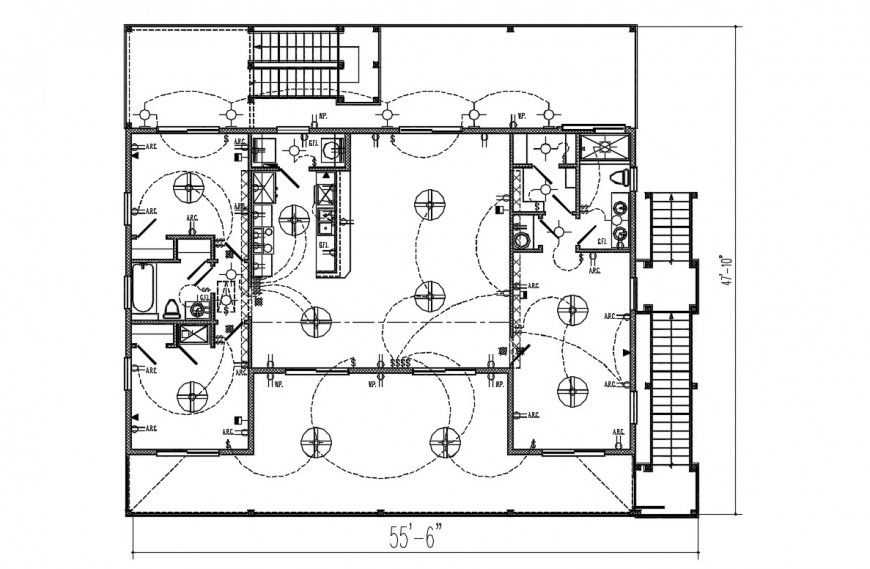
Electrical wiring details drawings 2d plan dwg file
Description
Electrical wiring details drawings 2d plan dwg file that shows electrical installation layout plan details with electrical wirings details and ceiling details also included in drawings.
Uploaded by:
Eiz
Luna

