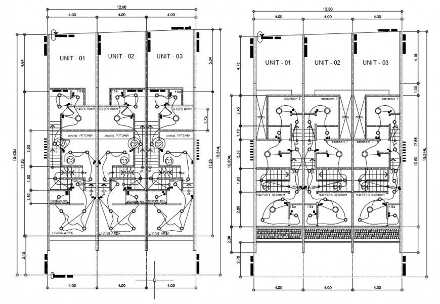
Electrical installation CAD drawings in building dwg file
Description
Electrical installation CAD drawings in building dwg file that shows electrical installation drawings details in building with earthing wire details and fuse circuits details also included in drawings.
Uploaded by:
Eiz
Luna

