residence ground floor and first floor detail cad file
Description
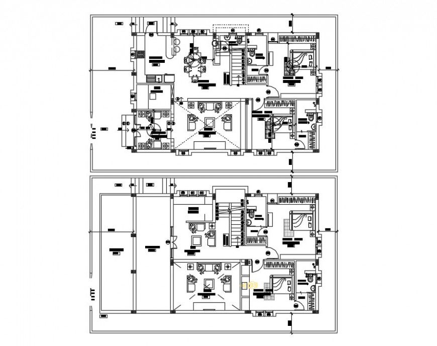
the architecture layout plan of the ground floor plan and first-floor plan includes a dining area, kitchen, bedrooms, bathroom, living room, a bar along with all furniture detail, measurement detail, download free cad file and use cad presentation of this residence idea layout plan.
Uploaded by:
Eiz
Luna

