Hotel building floor plan drawings 2d view dwg file
Description
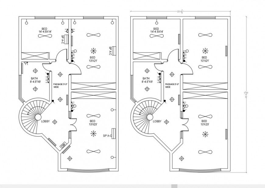
Hotel building floor plan drawings 2d view dwg file that shows bedroom details with attached sanitary toilet bathroom details. Room dimension details door window blocks details staircase details also included in drawings.
Uploaded by:
Eiz
Luna

