Residence project layout plan of ground floor an first floor detail
Description
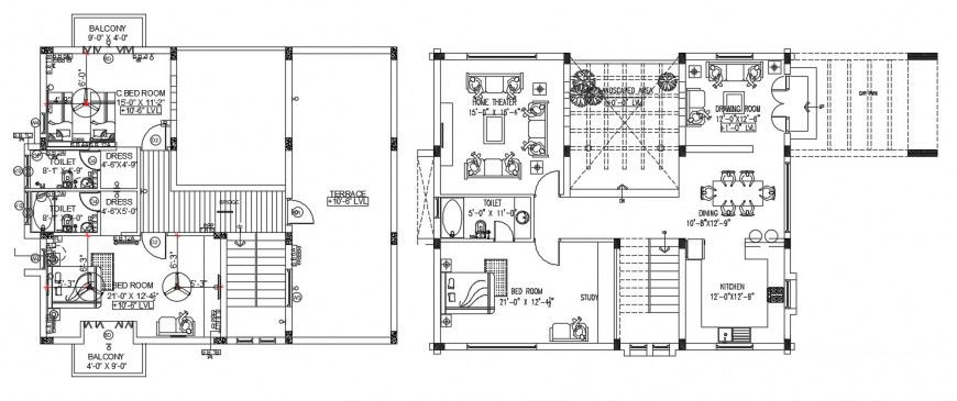
The architecture residence project detail layout plan of the ground floor a first-floor detail showing that 3 bedrooms, home theater, drawing room, dining area, modular kitchen, landscape area, bedroom outside balcony, staircase detail, car parking and terrace view along with all furniture detail, description detail, dimension detail, download free cad file and use for cad presentation.
Uploaded by:
Eiz
Luna

