2d Cad drawing of bathroom detail
Description
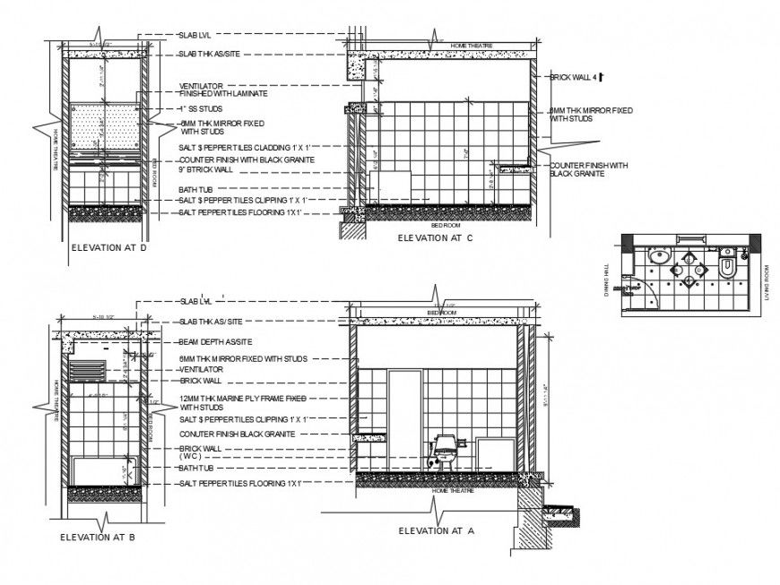
2d cad drawing of bathroom top view layout plan and side elevation design showing that brick wall, beam depth, counter finish with black granite, slab thickness, along with all dimension detail and description detail autocad file, download free cad file and use for master bathroom cad presentation.
Uploaded by:
Eiz
Luna

