apartment residence layout plan with ground floor shop detail cad file
Description
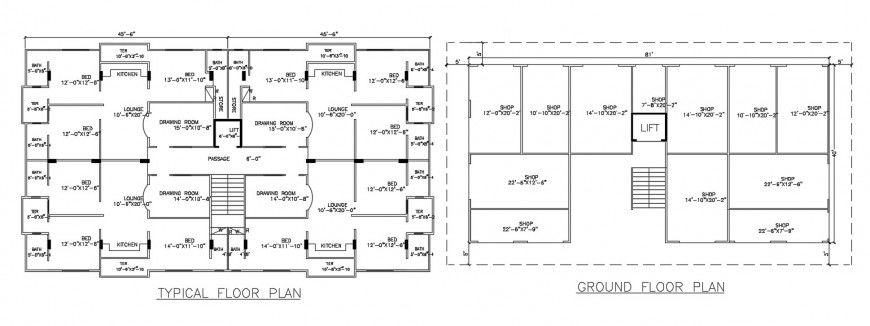
the architecture residence layout plan typical floor includes 3 bedrooms, drawing room, kitchen, lounge, bathroom, lift and staircase detail, also ground floor shop detail cad file, download free autocad file and use for cad presentation.
Uploaded by:
Eiz
Luna

