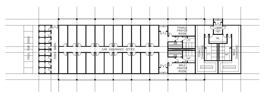
CAD drawings details of car insurance office building dwg file
Description
CAD drawings details of car insurance office building dwg file that shows work plan drawings details of office building with floor level details lobby area details wall flooring details room cabins details also included in drawings
Uploaded by:
Eiz
Luna
