CAD drawings of Raft foundation footing 2d view dwg file
Description
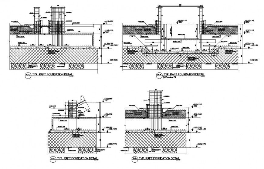
CAD drawings of Raft foundation footing 2d view dwg file that shows foundation footing details with reinforcement details in tension and compression zone along with main and distribution hook up and bent up bars details. Stirrups area provided to hold up bars in position and effective clear cover details also included in drawings. The structure is a reinforced concrete cement (RCC) structure.
File Type:
DWG
File Size:
12.4 MB
Category::
Construction
Sub Category::
Reinforced Cement Concrete Details
type:
Gold
Uploaded by:
Eiz
Luna
