Architectural plan of a hotel building in dwg file
Description
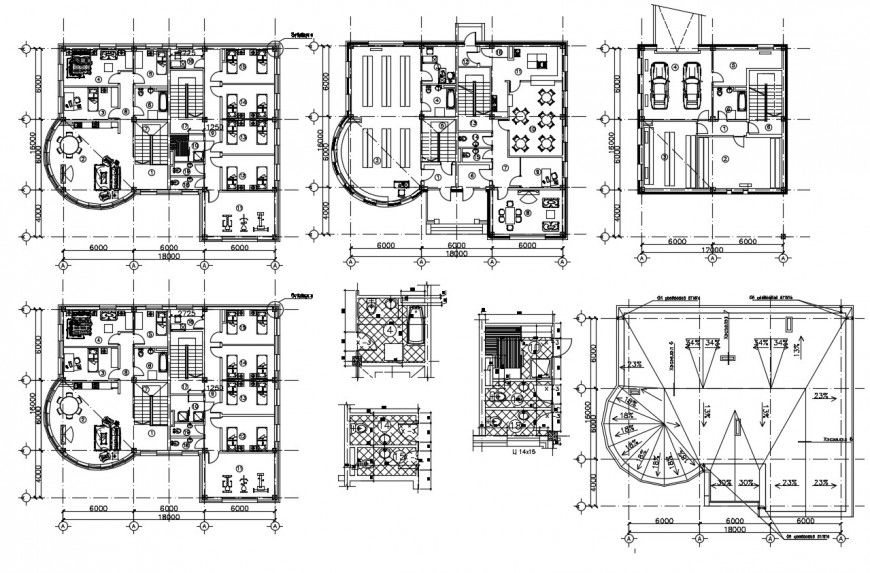
Architectural plan of a hotel building in dwg file which provides detail of the hall, restaurant area, rooms, kitchen area, waiting area, washroom, toilet, etc.
Uploaded by:
Eiz
Luna
Architectural plan of a hotel building in dwg file which provides detail of the hall, restaurant area, rooms, kitchen area, waiting area, washroom, toilet, etc.
Uploaded by:
Luna