2d toilet section plan autocad file
Description
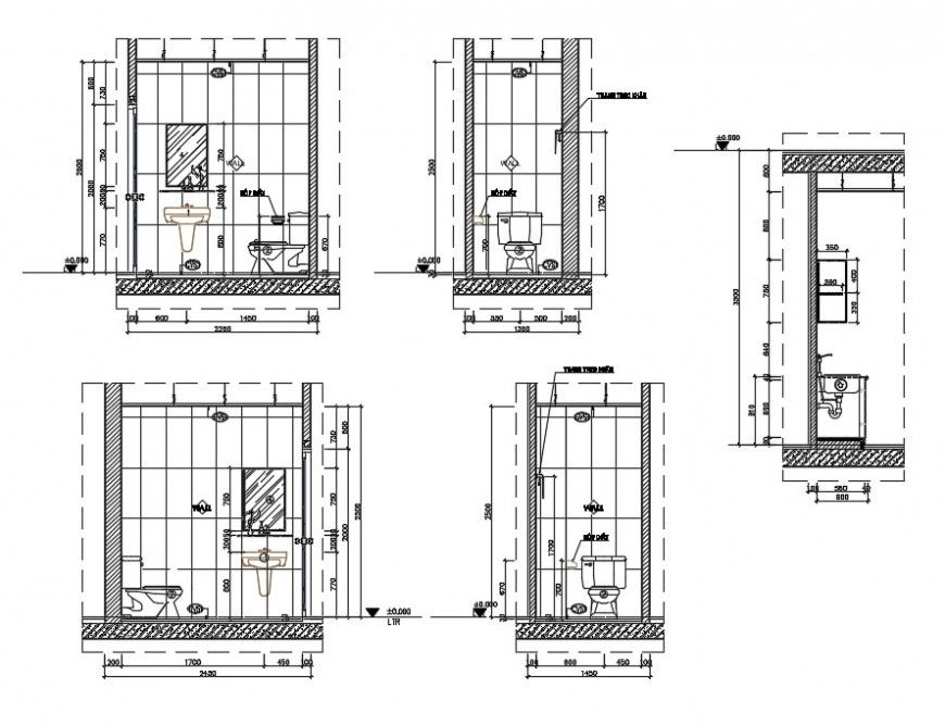
2d cad drawing of toilet section plan showing that sanitary toilet drawings detail different all side elevation and sectional detail side view of washbasin and toilet tub with installation detail along with all dimension detail mention in cad file, download free dwg file and get more detail about toilet drawing.
File Type:
DWG
File Size:
4.4 MB
Category::
Interior Design
Sub Category::
Bathroom Interior Design
type:
Gold
Uploaded by:
Eiz
Luna
