kitchen project detail cad file
Description
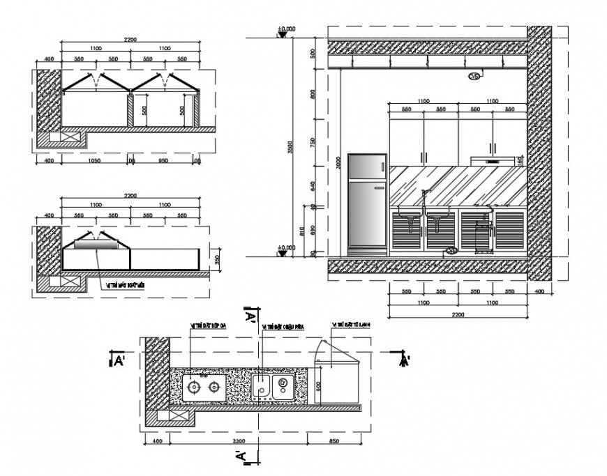
Modern luxurious kitchen model with furniture drawing details that include a detailed view of all-sided section details of the kitchen with wall design and tile design, dimensions details and furniture details, interior details, cooking area with platform area, gas stove and sink and plumbing details, download free cad file and kitchen drawing and get more detail bout kitchen project.
Uploaded by:
Eiz
Luna

