Toilet section drawing autocad file
Description
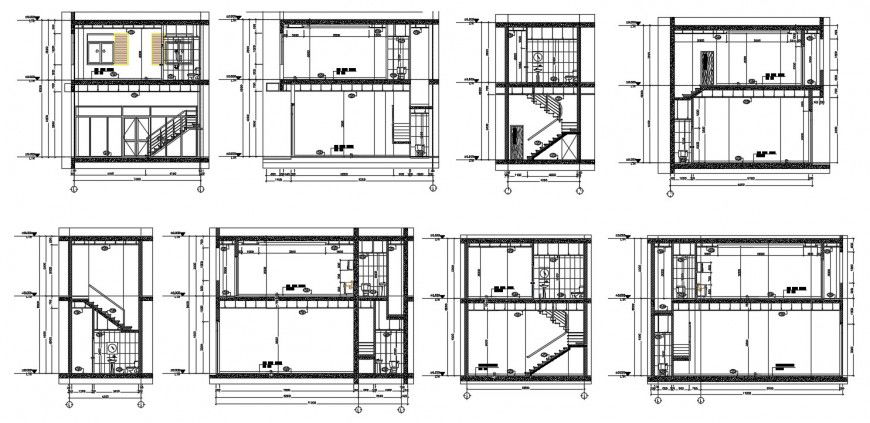
2d cad drawing of 2 story building toilet section view showing that sanitary blocks details of water closet with washbasin, toilet tub and plumbing pipe and tap faucets details along with all dimension detail cad file, download free cad file and use for multipurpose cad presentation.
File Type:
DWG
File Size:
4.4 MB
Category::
Interior Design
Sub Category::
Bathroom Interior Design
type:
Gold
Uploaded by:
Eiz
Luna
