Housing sanitary installation detail section and elevation design
Description
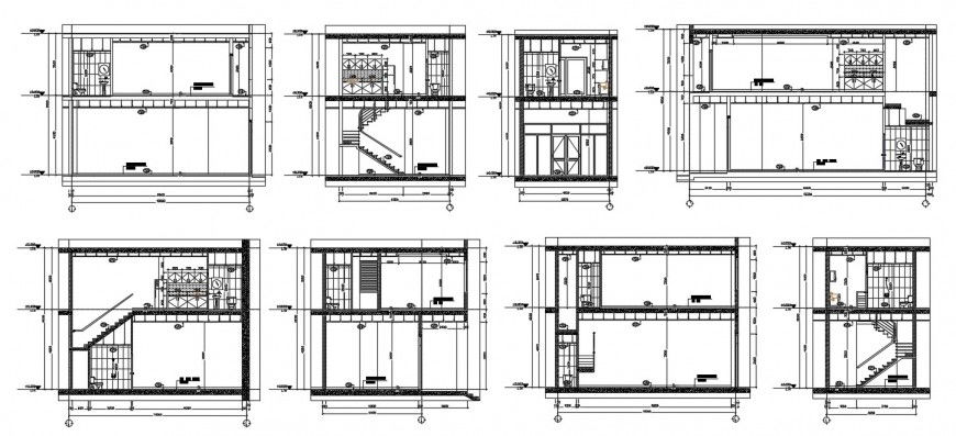
the architecture section plan has been designing in autocad software, a drawing showing layout plan includes 2 stories building toilet and kitchen section view of sanitary installation detail, download free cad file and get more detail about sanitary installation detail.
Uploaded by:
Eiz
Luna
