The architecture conference building layout plan
Description
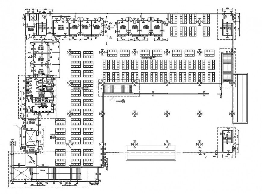
the architecture layout plan has been designing in autocad software, a drawing showing layout plan includes conference building layout plan showing that bathroom, wide hall, staircase detail, wide dining hall and compound wall detail, download free cad file and get more detail about conference building project.
Uploaded by:
Eiz
Luna

