Bathroom section and elevation design autocad file
Description
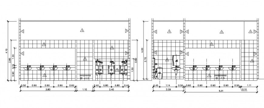
2d cad drawing of toilet section plan showing that sanitary toilet drawings detail different all side elevation and sectional detail side view of washbasin and toilet tub with installation detail along with all dimension detail mention in cad file, download free dwg file and get more detail about bathroom.
File Type:
DWG
File Size:
885 KB
Category::
Interior Design
Sub Category::
Bathroom Interior Design
type:
Gold
Uploaded by:
Eiz
Luna

