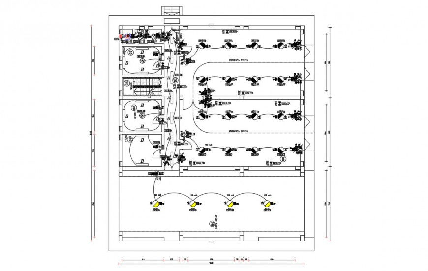
CAD plan of electrical installation in building dwg file
Description
CAD plan of electrical installation in building dwg file that shows electrical wiring details along with earthing wire detailed fuse circuits details also included in drawings. Dimension boundary wall details also included in drawings.
Uploaded by:
Eiz
Luna

