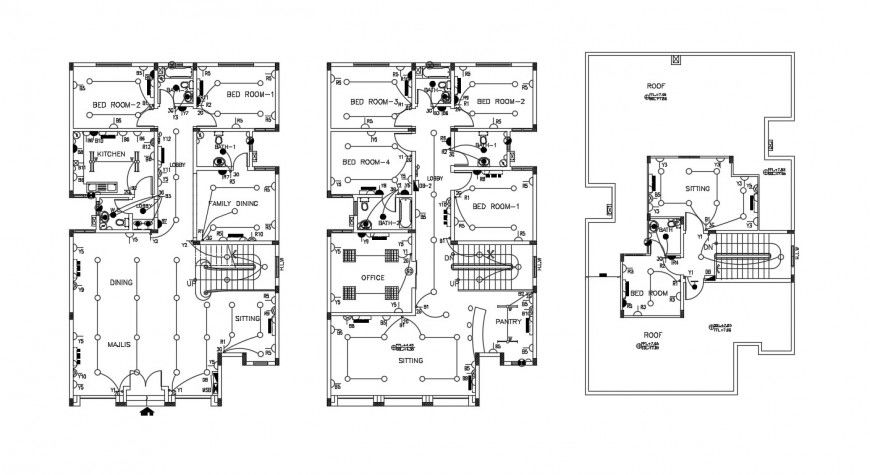
Light fitting details in housing apartment dwg file
Description
Light fitting details in housing apartment dwg file that shows work plan drawings details of building with electrical light fittings details and earthing wire circuits fuse details also included in drawings.
Uploaded by:
Eiz
Luna
