2d CAD plan drawings of hotel bedrooms details in autocad file
Description
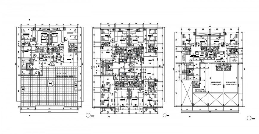
2d CAD plan drawings of hotel bedrooms details in autocad file that shows work plan drawings details of the bedroom along with furniture layout details. Attached sanitary toilet bathroom details with dimension hidden line details also included in drawings.
File Type:
DWG
File Size:
628 KB
Category::
Interior Design
Sub Category::
Bathroom Interior Design
type:
Gold
Uploaded by:
Eiz
Luna

