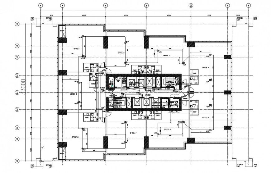
Installation detail of fire alarm in a commercial building in dwg file
Description
Installation detail of fire alarm in a commercial building in dwg file which includes detail dimension of different sections of offices, balcony, pantry, toilets, electric room, garbage room, stairs, lobby, lift lobby, etc.
File Type:
DWG
File Size:
527 KB
Category::
Electrical
Sub Category::
Electrical Automation Systems
type:
Gold
Uploaded by:
Eiz
Luna

