CAD drawings details of foundation footing structure dwg file
Description
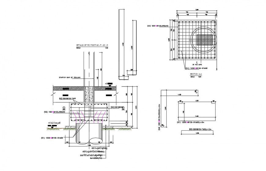
CAD drawings details of the foundation footing structure dwg file that shows reinforcement details in tension and compression zone along with concrete masonry details. The main distribution hooks up and bent up bars details with stirrups detail and dimension details also included in the drawing.
Uploaded by:
Eiz
Luna

