CAD elevation and section drawings of apartment dwg file t
Description
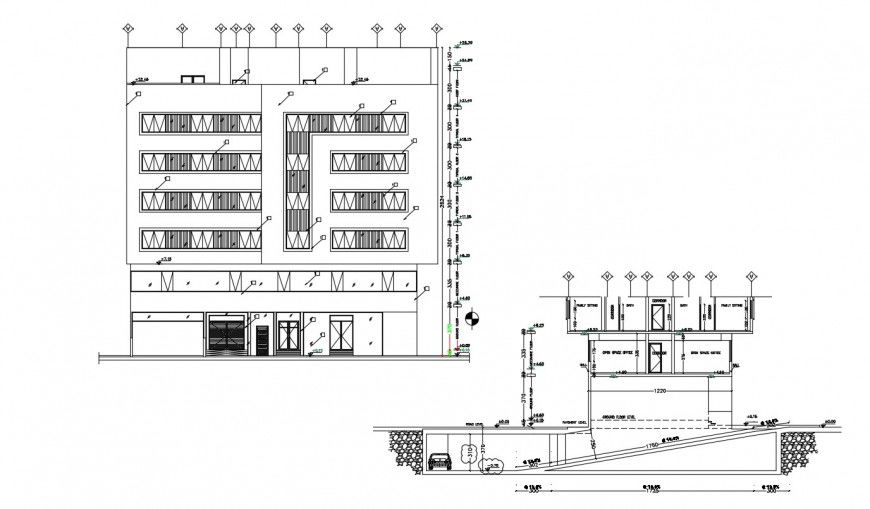
CAD elevation and section drawings of apartment dwg file that shows front elevation of the apartment with floor level details and sectional drawings details of the apartment and parking space details leveling details also included in the drawing.
Uploaded by:
Eiz
Luna
