Electrical layout plan of room cad file
Description
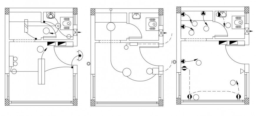
2d cad drawing of electrical installation layout plan along with ceiling lighting detail cad file, download free cad file and get more detail; about electrical wiring cad file
Uploaded by:
Eiz
Luna
2d cad drawing of electrical installation layout plan along with ceiling lighting detail cad file, download free cad file and get more detail; about electrical wiring cad file
Uploaded by:
Luna