Drawing details of housing living apartment floor plan dwg autocad file
Description
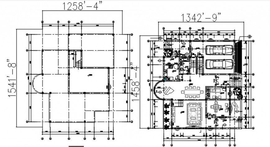
Drawing details of housing living apartment floor plan dwg autocad file that shows work plan drawings details of the house along with room details of drawings room, bedroom, kitchen and dining area, sanitary toilet and bathroom details . Parking space details length width details furniture layout details also included in drawings
Uploaded by:
Eiz
Luna

